-
180 m2
-
4 chambres
-
1 salle de bain
Description du bien
Situé en plein centre d'Hombourg et de ses commerces, spacieux "Duplex" avec 4 chambres.
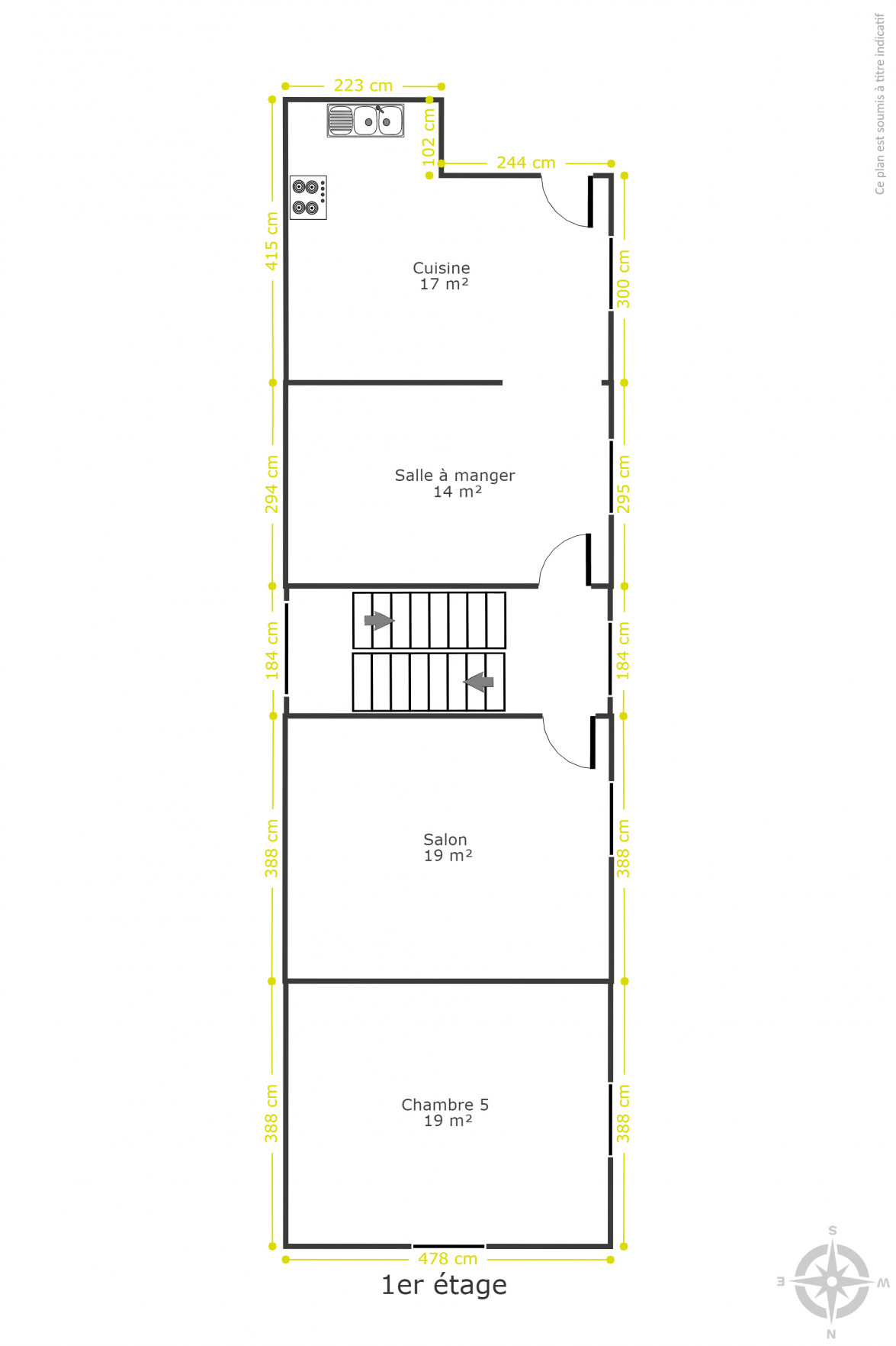
L'appartement, situé au premier étage, se compose d'un hall d'entrée, d'une cuisine équipée (taques électriques, four, évier, lave-vaisselle) avec salle à manger, d'un salon, d'une chambre. A l'étage se trouvent un palier (bureau), une pièce de jeux ou bureau, une salle de bains avec baignoire, une buanderie/dressing et 3 chambres en enfilades.
Châssis DV PVC (volets) - Parlophone - CC mazout
PEB : E (n°20161003015928)
Provisions : 150€ (chauffage) et 50€ (eau) (régularisation suivant consommations)
L'appartement, situé au premier étage, se compose d'un hall d'entrée, d'une cuisine équipée (taques électriques, four, évier, lave-vaisselle) avec salle à manger, d'un salon, d'une chambre. A l'étage se trouvent un palier (bureau), une pièce de jeux ou bureau, une salle de bains avec baignoire, une buanderie/dressing et 3 chambres en enfilades.
Châssis DV PVC (volets) - Parlophone - CC mazout
PEB : E (n°20161003015928)
Provisions : 150€ (chauffage) et 50€ (eau) (régularisation suivant consommations)
Emplacement du bien
| ID du bien | 4223052 |
| Titre du bien | Appartement |
| Référence | 2020/20 |
| Catégorie | appartement |
| Sous-catégorie | duplex |
| Transaction | À louer |
| Status de la transaction | Loué |
| Prix | 650€ |
| Disponibilité | bon état |
| État du bâtiment | bon état |
| Classe énergétique | E |
| Valeur énergétique | 369kWh/m²/an |
| Type de chauffage | mazout (chauf. centr.) |
| Totale | 180 m2 |
| Salle à manger | 14 m2 |
| Cuisine | 17 m2 |
| Chambre 1 | 19 m2 |
| Chambre 2 | 16 m2 |
| Chambre 3 | 16 m2 |
| Chambre 4 | 18 m2 |
| Bureau | Oui |
| Buanderie | Oui |
| Accès à l'eau | Oui |
| Double Vitrage | Oui |
| Electricité | Oui |
650 €
GaryHockGérant de l'agence
Ce bien vous intéresse ? Contactez-moi pour plus d'informations. Je vous répondrai rapidement pour fixer une visite ou pour répondre à vos questions.